¡Enorme, de 229 m2 de lujo, renovado en el pie de Margithíd en el 5to Distrito! Vendido

haz clic para ver más
837 500 EUR
3 657 EUR /m2
Número de referencia PRO ID #00083
Dirección V. Falk Miksa utca
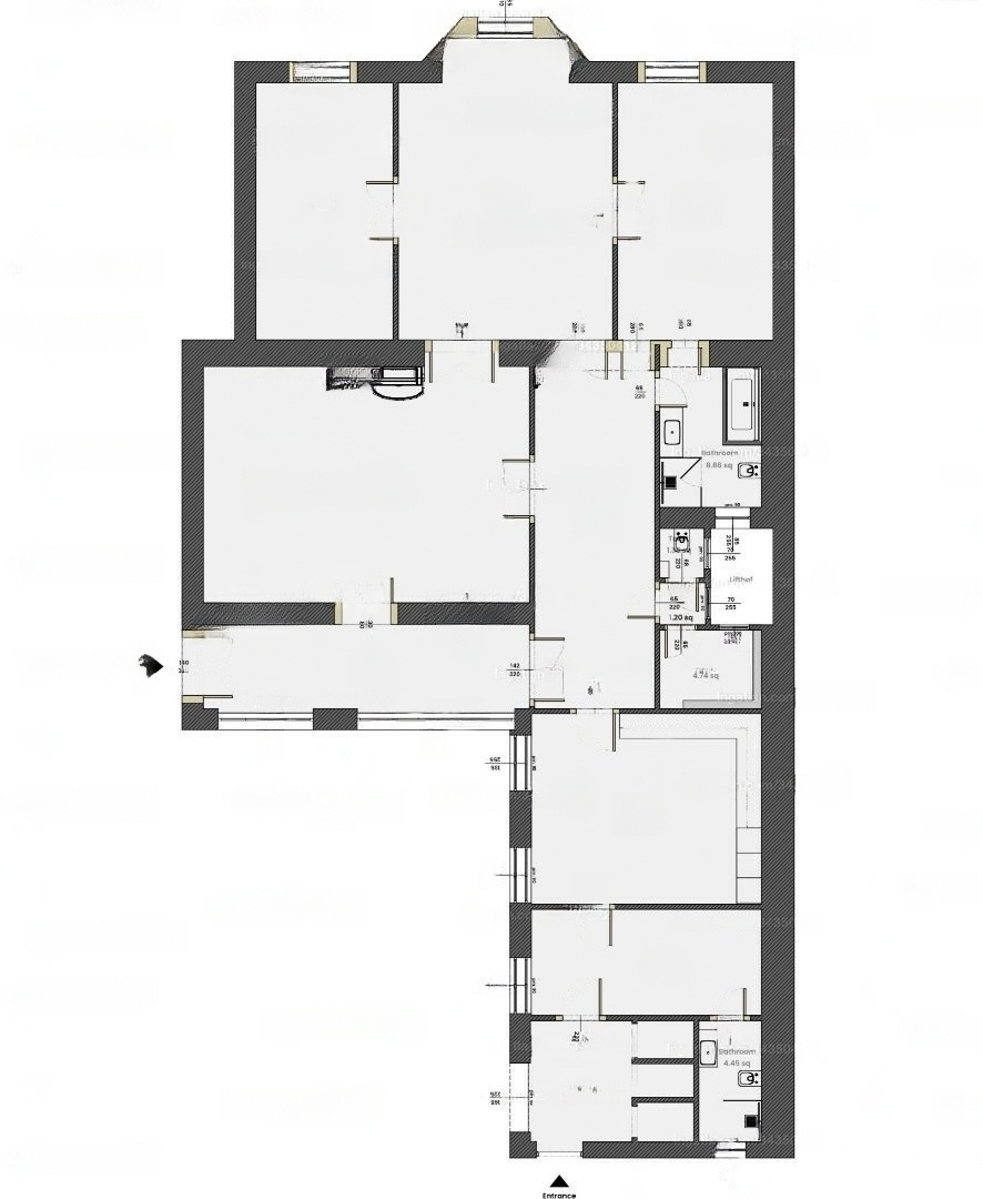
Superficie habitable 229 m2
dormitorios 3
Número de habitaciones 5
Condición Renovado
Año de construcción Antes de 1950
Número de niveles del edificio 4
Nivel de planta 3
Ascensor
Altura interior Más de 3m
Aire acondicionado
Disponible inmediatamente
Baño y aseo separados
Orientación Norte
Vista Calle
Tamaño del balcón 11 m2
Aparcamiento Calle
Gastos comunes 70 000 HUF / mes HUF/mes

Descripción de la propiedad

lujoso apartamento clásico para la venta en el prestigioso 5to distrito de Budapest (Lipótváros)

ubicación : 5to distrito, lipótváros, budapest
size : 229 m²

Ubicado en el corazón de Lipótváros, este gran apartamento está situado en el tercer piso elevado de un histórico edificio de cuatro pisos. Ofrece una impresionante combinación de elegancia clásica y comodidad moderna, con espectaculares vistas del famoso Puente Margaret y el Teatro Vígszínház.

características clave :

  • ubicación primaria : todo lo que necesita está a poca distancia, incluidos numerosos restaurantes, cafés, supermercados, tintorerías y otros servicios. El centro comercial Westend City Center está a solo 10 minutos a pie. Situado al pie de Margaret Bridge, el apartamento también está a pocos minutos a pie de Margaret Island, un lugar ideal para actividades al aire libre y relajación.
  • renovado con cuidado : este espacioso apartamento ha sufrido una renovación cuidadosa, restaurando completamente su encanto clásico original. Cada detalle ha sido conservado o restaurado para mantener su carácter auténtico, al tiempo que incorpora la tecnología moderna del hogar inteligente. Solo se han utilizado materiales y accesorios de calidad superior en todo momento.
  • Amplio y lleno de luz : como el apartamento original más grande del edificio, cuenta con una altura de techo de 4 metros y espacios expansivos y iluminados por el sol. El diseño reflexivo garantiza un ambiente agradable durante todo el año, cálido en el invierno y fresco en el verano.

destacados :

  • Dos entradas
  • Una chimenea
  • Un gran balcón

Diseñado por el reconocido arquitecto Gyula Landherr , el edificio está en buenas condiciones y ha sufrido renovaciones, con mejoras adicionales planificadas. A pesar de su ubicación central, el apartamento disfruta de la paz y la tranquilidad, con vecinos amigables y un ambiente de vida sereno en el vibrante pero tranquilo lipótváros de Budapest.

Este apartamento es perfecto para aquellos que buscan lujo y elegancia en uno de los vecindarios más buscados de Budapest.


¿Está interesado?

¡No dudes en contactarnos! Nuestro equipo se pondrá en contacto contigo lo antes posible.


Warning: JIT is incompatible with third party extensions that override zend_execute_ex(). JIT disabled. in Unknown on line 0